トップ
会社概要
物件情報
LIEN’Sの強み
よくある質問
CONTACT
物件情報
建築条件無し・売土地<猪名川町旭ヶ丘>
【売却中】
売土地
×
おすすめ
ポイント
★建築条件無売土地
★おすきなハウスメーカー
★平屋建プランあり
★セカンドハウス
★自然豊か
★四季の移ろい
★週末別荘暮らし
交通
能勢電鉄「日生中央駅」までバスで約21分
住所
猪名川町旭ヶ丘
価格
300万円
間取り
築年数
構造/階
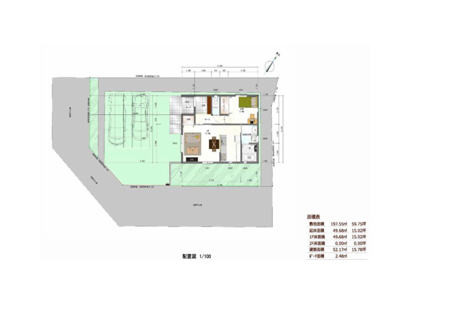
建物面積
平屋プランあり
土地面積
197.54㎡(約59.75坪)
施設
現況
更地
接道状況
南西 公道に約12.2m接道
その他
角地